Ketika ingin melakukan pencarian dana APBN melalui Kantor Pelayanan Perbendaharaan Negara (KPPN), Anda harus menyampaikan Surat Perintah Membayar yang wajib disertakan kepada KPPN.
Apakah Anda baru mendengar istilah tersebut dan ingin tahu lebih lanjut? Melalui artikel ini, Anda akan memperoleh informasi lengkap mengenai pengertian, format, dan contoh Surat Perintah Membayar yang mudah dipahami.
Apa itu Surat Perintah Membayar?
SPM atau Surat Perintah Membayar adalah dokumen untuk mencairkan dana yang berasal dari Daftar Isian Pelaksana Anggaran (DIPA). Pelaksanaan APBN harus mengacu pada DIPA untuk penggunaan anggaran pada kegiatan pemerintah setiap tahunnya.
Salah satu fungsi DIPA adalah untuk pencairan dana atau pengesahan Kuasa Bendahara Umum Negara (BUN). Sehingga, SPM diperlukan sebagai surat perintah untuk mencairkan dana APBN kepada KPPN selaku Kuasa BUN.
Jenis Surat Perintah Membayar
Sebagai Pengguna Anggaran, Anda wajib mengetahui kategori atau jenis SPM yang diterbitkan oleh masing-masing KPPM setempat, sebagai berikut:
- SPM Belanja Pegawai
- SPM Gaji Induk
- SPM Gaji Susulan
- SPM Kekurangan Gaji
- SPM Gaji Lainnya
- SPM Uang Persediaan
- SPM Dana Uang Persediaan (UHYD)
- SPM Penggantian Uang Persediaan (SPM GUP)
- SPM Pengesahan
- Surat Perintah Pengesahan Pendapatan dan Belanja (SPM BLU)
- SPM Pengesahan Bea Masuk Ditanggung Pemerintah (SPM P BM DTP)
- SPM Pengesahan Pajak Ditanggung Pemerintah
- SPM Pengesahan Hibah Langsung
- SPM Langsung (SPM LS)
- SPM Pembayaran Langsung (PL)
- Surat Kuasa Membayar (SKM)
- SPM Pengembalian Pendapatan (SPM PP)
- SPM Pengembalian Penerimaan
- SPM Kelebihan Pembayaran Pajak (SPM KP Pajak)
- SPM Pengembalian Bea Masuk, Denda Administrasi, dan/atau Bunga (SPM P BMDAB)
- SPM Pembagian Hasil Penerimaan Bea Perolehan Hak atas Tanah dan Bangunan (SPM PHP BPHTB)
- SPM Imbalan Bunga (SPM IB)
Format Surat Perintah Membayar
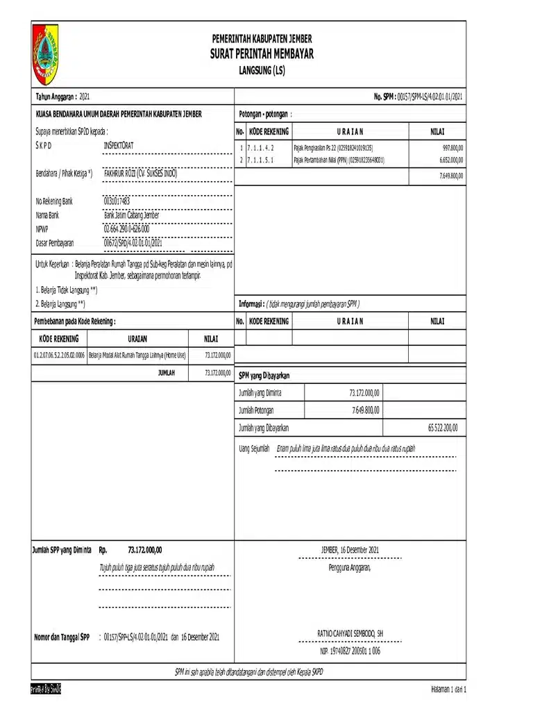
Format SPM adalah aspek penting yang harus diperhatikan agar Anda mengetahui letak segala detail yang terkandung dalam dokumen ini. Berikut komponen SPM, antara lain:
- Header: Header berisi logo, nama pemerintah setempat, nama surat, tahun anggaran, dan nomor SPM untuk keperluan administrasi.
- Kolom Detail Kuasa Bendahara: Kolom ini berisi nama dan jabatan bendahara beserta nama perusahaannya. Kolom ini juga mengandung detail bank sebagai pembayaran, seperti nama bank, nomor rekening bank, NPWP, dan dasar pembayaran.
- Kolom Total Pembayaran: Ada dua kolom lagi yang terbagi, yaitu kolom “Pengeluaran” untuk rincian kegiatan beserta jumlah pengeluaran, dan “Potongan” anggaran. Masing-masing kolom tersebut dijumlah kemudian kolom “Pengeluaran” dikurangi kolom “Potongan”. Hasil nanti akan menjadi jumlah yang dibayarkan ke rekening bank yang telah tercantum.
- Tanda Tangan: Tanda tangan disertakan untuk konfirmasi persetujuan dari Pengguna Anggaran terhadap SPM.
Baca Juga: 10 Contoh Surat Perintah Kerja Berbagai Keperluan, Terlengkap!
Contoh Surat Perintah Membayar
1. Contoh Surat Perintah Bayar Secara Umum
2. Contoh Surat Perintah Membayar Langsung
Source: Scribd
3. Contoh Surat Perintah Membayar Pembayaran Gaji
Source: Scribd
4. Contoh Surat Perintah Membayar Pengesahan Hibah Langsung
Source: Scribd
Itulah penjelasan lengkap mengenai SPM. Beberapa contoh SPM tersebut penting untuk Anda ketahui, terutama sebagai Pengguna Anggaran kedepannya agar Anda memiliki gambaran jelas seperti apa SPM yang akan Anda terima nantinya.
Di era digital ini, form SPM sudah tidak lagi berbentuk kertas, melainkan dalam bentuk dokumen online. Begitu pun dengan tanda tangan, suatu dokumen online tidak akan lengkap bila tidak ada tanda tangan digital.
Karena itu, hadir Mekari Sign sebagai solusi penyedia layanan tanda tangan digital yang terpercaya untuk membantu Anda dalam setiap proses administrasi. Proses Anda akan berjalan lebih cepat dan aman dengan penyedia layanan resmi tanda tangan digital.





